Ανακαινίζετε ή Κατασκευάζετε επαγγελματική κουζίνα; Αναλαμβάνουμε τo σχεδιασμό επαγγελματικής κουζίνας και τη μελέτη εξοπλισμού μαζικής εστίασης. Δείτε περισσότερα >

 

AMALIA HOTEL στους Δελφούς

Η KitchenPRO, ολοκλήρωσε με απόλυτη επιτυχία, τον σχεδιασμό, κατασκευή και εγκατάσταση της κεντρικής κουζίνας του ιστορικού ξενοδοχείου AMALIA HOTEL DELPHI, στους Δελφούς του νομού Φωκίδας.
 
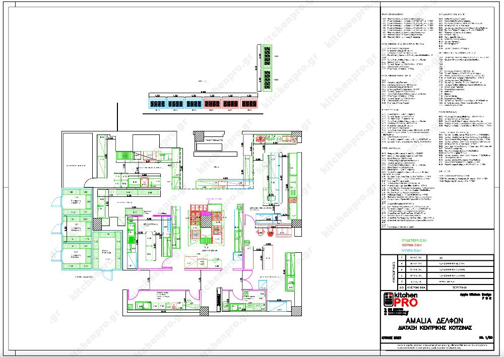
Η ομάδα της kitchenPRO συνεργάστηκε επί μακρό διάστημα, με τα στελέχη (chefs, διευθυντές, F&B) του ομίλου και σε συνδυασμό με τη μεγάλη της εμπειρία σε παρόμοια projects, σχεδίασε τη διαρρύθμιση της κουζίνας που περιλαμβάνει:
 
•    Παραλαβές Α' υλών.
    Ψυκτικούς θαλάμους.
•    Προετοιμασίες κρεάτων, πουλερικών, ψαρικών, λαχανικών.
•    Αρτοζαχαροπλαστείο.
•    Κρύα κουζίνα.
•    Ζεστή κουζίνα.
•    Πλύση σκευών.
•    Πλύση πιάτων & ποτηριών.
•    Κουζίνα πρωινών.
•    Χώρο σερβιτόρων.
 
Πρόκειται για μία μονάδα υψηλότατου επιπέδου, με κουζίνα υψηλής γαστρονομίας σε συνδυασμό με παραδοσιακή ελληνική κουζίνα. Η πρόκληση ήταν να σχεδιάσουμε μία κουζίνα με την τελευταία σχεδιαστική λέξη, με υπερσύγχρονα μηχανήματα, που να διατηρεί όμως και τον παραδοσιακό χαρακτήρα της.

Στην κεντρική κουζίνα εγκαταστάθηκε monoblock island του Ιταλικού οίκου ATA.

Συγκεκριμένα, εγκαταστάθηκαν μηχανήματα κορυφαίων οίκων του εξωτερικού όπως:

  • Κεντρική νησίδα monoblock ΑΤΑ Ιταλίας.
  • Φούρνοι Combi Steamer Giorik Ιταλίας.
  • Πλυντήρια Πιάτων - Ποτηριών - Σκευών ΑΤΑ Ιταλίας.
  • Μηχανήματα προετοιμασίας Robot Coupe Γαλλίας.
  • Ψυγεία ΙNΟΜΑΚ Ελλάδος.
  • Μηχανήματα προετοιμασίας Santos Γαλλίας.
  • Μηχανήματα αρτοζαχαροπλαστικής MACPAN Ιταλίας.
  • Όπως πάντα, οι ανοξείδωτες κατασκευές κατασκευάστηκαν από την KitchenPRO επί μέτρο, ειδικά για τους χώρους του πελάτη και σύμφωνα με τη μελέτη του χώρου, από ανοξείδωτο χάλυβα βαρέως τύπου AISI 304 πάχους 1,5 χιλιοστών.

Η kitchenPRO ευχαριστεί πολύ τα στελέχη του ομίλου και την οικογένεια Κουλουβάτου για την άψογη συνεργασία.

Loading video...
 
 
 

warranty
Οι μεγαλύτεροι οίκοι του εξωτερικού είναι εδώ!

support
Άμεση τεχνική υποστήριξη

Low price
Από τις χαμηλότερες τιμές της αγοράς!

Εγγραφή

KitchenPRO © 2015-2026. All rights reserved.

Designed & Developed with care by TotalWeb | Digital Marketing by kovald

+

PRO DEALS!